|
公司基本資料信息
|
|||||||||||||||||||||||||||
細水霧的滅火原理:一是降溫效能,吸收熱量;二是窒息作用,阻斷氧化反應。此外,細水霧具有非常優越的阻斷熱輻射傳遞的效能,能有效地阻斷強烈的熱輻射。
高壓細水霧消防泵系統的特點:
安全環保--以水為滅火劑的物理滅火,對環境、保護對象、保護區人員均無損害和污染。
高效滅火--冷卻速度比一般噴淋系統快100倍。高壓細水霧還具有穿透性,可以解決全淹沒和遮擋的問題,還可以防止火災的復燃。
凈化作用--能凈化煙霧和廢氣,有利于人員安全疏散和消防人員的滅火救援工作。
屏蔽輻射熱--對熱輻射有很好的屏蔽作用,達到防止火災蔓延、迅速控制火勢的效果。
水漬損失小--用水量僅為水噴淋系統的1-5%,避免了大量的排水對設備的損壞和對環境的二次污染。
電絕緣性好——可有效撲救帶電設備火災。
可靠性高--系統安裝完成后可對系統進行模擬檢驗,以增加系統動作的可靠性。
系統壽命長--所用泵組、閥門和管件均采用耐腐蝕材料,系統壽命可長達30(60)年。
配制靈活--可局部使用,保護獨立的設施或設施的某一部分;作為全淹沒系統,保護整個空間。
安裝簡便--相對于傳統的滅火系統而言,管道管徑小,僅為10-32mm,使安裝費用相應降低。
維護方便--僅以水為滅火劑,在備用狀態下為常壓,日常維護工作量和費用大大降低。
細水霧供水要求為泵組式細水霧系統,采用水泵對系統進行加壓供水,廣州三業公司研發生產的數字定壓柴油機泵+多級離心泵組合的高壓細水霧消防泵組,滿足NFPA750標準對泵組工作壓力的要求,同時能夠設置多個出口壓力揚程,無需特殊噴頭,縮減消防系統的成本。細水霧柴油機水泵的揚程范圍在100~1000m,輸送液體流量自15~55m³/h。
在實際消防工程應用中,因有不同高度、不同輸水距離、不同的出水口壓力損失的特點,往往對泵組的要求是多壓力、超高揚程。
廣州三業公司研發生產的數字定壓柴油機泵+多級離心泵組合的高壓細水霧消防泵組,能夠滿足對不同出口壓力的高揚程要求。細水霧柴油機水泵的揚程范圍在600~1000m,輸送液體流量自15~55m³/h。
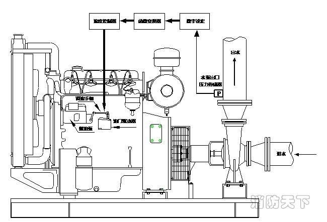
高壓細水霧消防泵典型機型配置示意圖
數字定壓柴油機水泵適用范圍:
數字定壓柴油機水泵是一種直接數字鎖定給水壓力的恒壓變流量設備。該設備在智能控制的基礎上實現直接數字鎖定壓力,能在10s內提供0~100%(系統最大流量),系統流量按需改變,但系統壓力恒定不變。數字定壓是一種保證給水系統在設計壓力參數作業的技術,一句話技術優勢——系統不超壓!
多級泵采用多個單級泵的組合,能夠達到設定的高揚程要求,范圍可達600~1000m。滿足細水霧噴頭的出口壓力要求。
* 數字定壓工作原理
以直接數字控制方式,在控制面板設定供水參數(出口壓力、揚程差壓、流量差壓),水泵出口的變送器檢測實時參數值,通過計算機數字處理器按設定的參數值進行函數變換、非線性修正和模糊PID運算后閉環控制發動機的轉速,實現系統參數的精確鎖定(恒壓力、恒揚程、恒流量)。從而實現恒壓、恒揚程或恒流量供水的目的。


三個控制器
|
1數字定壓控制模式 --能按需要直接數字鎖定揚程或流量 的控制模式。 (直接面板設定出口壓力)
|
2智能控制模式 --自主操作,保障設備安全
3電池管理器 ----自動監控控制電源電池和啟動蓄電池電池,智能報障。
|
關于數字定壓技術
其技術原理如圖二。通用水泵額定轉速的特性曲線如圖二(A),通用內燃機的調速特性曲線如圖二(B)。由于水泵和內燃機各自特性的影響,傳統內燃機水泵的速度調節性能很差如圖二(C),所以只能鎖定轉速(調差率低)而不可能鎖定壓差。數字定壓控制器的輸出信號經函數變換器、線性修正、模糊DID運算后,內燃機的轉速調節特性曲線如圖二(D)。從而內燃機水泵可以按需要直接數字控制鎖定壓差,最終鎖定揚程如圖二(E)或鎖定流量如圖二(F)。


配套主設備選用靈活:
水泵選型:新一代高效能、低維修率的水泵——葉輪為優秀水力模型;不泄漏的單面機械密封;免維護的脂潤滑大號軸承,維修不需拆卸管道及泵體的后開式泵殼設計等。
柴油機選型:根據客戶需求選用國內名牌或進口原裝品牌工程用柴油發動機。配套發動機為起動性能好、負載能力強、油耗低、噪音低、故障率低、排放低、配件充足的品牌。

啟動方式選用靈活:
|
手動控制: 由人工按動控制器面板按鈕,
運行過程由預設的程序自動完成。
![]() |
自動控制: 設備接受消防/管網壓力或其它,
自動控制信號后,響應啟動/停止。
![]() |
|
遠程控制: 由計算機通過通訊網絡實現,
遠程遙監、遙控、遙訊、遙調。
|
人工控制: 在設備檢修或某種特殊需要的
情況下,由備用啟動裝置進行啟動。
|

可根據客戶實際工況要求設計生產。

高壓單流體細水霧滅火系統適用于撲救A類、B類、C類和電氣類火災。由于它先進的滅火機理,其使用基本不受場所的限制,在陸地、海洋、空間均可應用。尤其是對高危險場合的局部保護和對密閉空間的保護特別有效。如:石化行業、軍事裝備、煤炭行業、醫藥、食品加工行業、古建筑、檔案館、商業民用建筑、地鐵、隧道、大型交通車輛、水面船舶、航空航天、電力、電子行業、消防隊和森警等。
技術應用
■大空間應用——在大空間消防給水系統中,為確保在短時間內提供系統最大供水量,在收到消防信號后,立即啟動包括備用在內的所有柴油機水泵。
■區域應用——在大面積范圍消防給水系統中,能按不同高度、距離以及不同的滅火設備進行多組給水壓力設定,以滿足不同的給水參數的需求。
■并聯應用——在多臺同時裝備恒揚程/止回閥的柴油機水泵并聯系統中,就可實現全系統的數字定壓控制。
■系統安全——恒定系統壓力,防止裝置系統在流量大幅度波動的狀態下引起裝置系統揚程的大幅度波動而損壞系統構件,確保系統安全。
■節省投資——顛覆傳統設計中大面積區域消防給水系統須按不同的作業區域配備不同的壓力供給系統的設計模式,大大節省投資及運行費用。